Clínica Traumatológica
Belgrano, Buenos Aires, Argentina
Proyecto: 2019
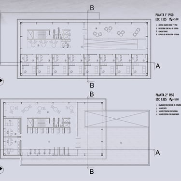
El proyecto de la Clínica Traumatológica se desarrolló con un enfoque en la funcionalidad médica y la experiencia del paciente. Diseñamos un espacio eficiente y moderno, optimizando los flujos internos para garantizar comodidad y accesibilidad tanto para profesionales como para usuarios.
La propuesta arquitectónica integra áreas de consulta, tratamiento y recuperación en un entorno armónico, donde la luz natural y los materiales seleccionados generan una atmósfera acogedora y profesional. Además, se consideraron normativas específicas para espacios de salud, asegurando seguridad y cumplimiento técnico en cada detalle.
El resultado es un edificio que combina diseño contemporáneo con las necesidades propias de una clínica traumatológica, ofreciendo un espacio funcional que mejora la experiencia médica y refuerza la conexión entre salud y arquitectura.














